Descrizione

Cuneo – Corso Francia 10/B
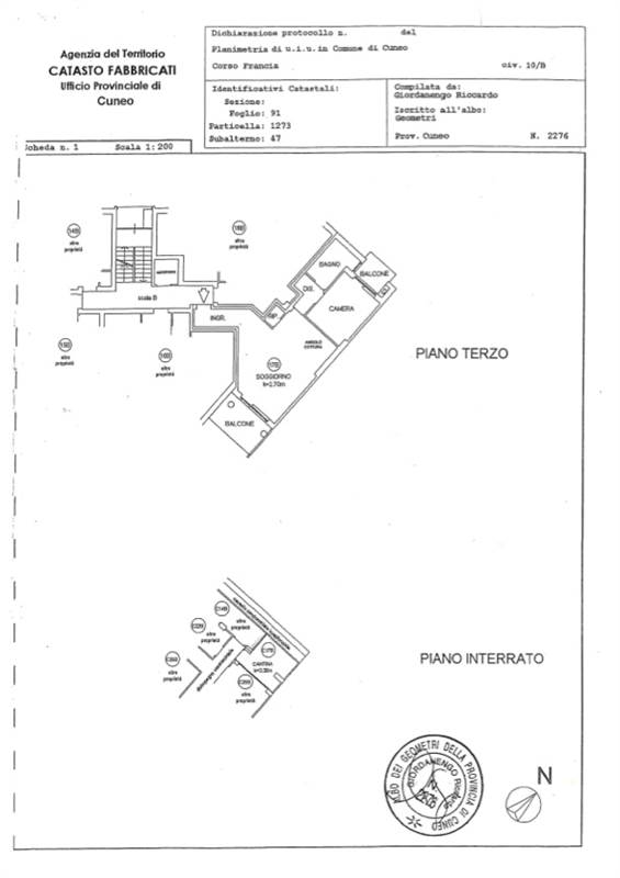
Nel rinomato Condominio “Pegaso”, proponiamo in vendita ampio bilocale con terrazzo abitabile, ideale per pranzi, cene all’aperto e momenti di relax. L’appartamento si compone di:
ingresso su luminoso soggiorno open space con parete cottura e accesso al terrazzo principale, camera matrimoniale, bagno, ripostiglio, e secondo terrazzino. L’immobile si presenta in condizioni impeccabili, senza necessità di interventi di ristrutturazione.
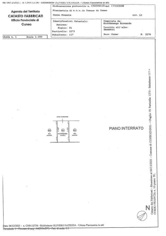
Completano la proprietà: Cantina e Box auto.
Richiesta: € 180.000 + autorimessa
APE: Classe C
Rif. 081


Caratteristiche principali

Stato Immobile
Buono
Grado
Medio
Panorama
Vista Aperta
Lati Liberi
2
Giardino
Comune
Arredi
Arredato
Riscaldamento
Autonomo
Tipo Impianto
Radiatori
Fonte Energetica
Metano
Raffrescamento
No
Accesso Disabili
Nessuna Barriera
Accessori: Ascensore, Cancello Elettrico, Doppi Vetri, Porta Blindata, Video Citofono

Mappa

Corso Francia 10, Cuneo (CN)

Video

Cookie preference